Апартамент содной спальней в новом современном доме без таксы в кв. Аурелия, Несебр
Заказать →
- От 95,590€
Описание объекта
Предлагаем к продаже апартамент в новом жилом здании от застройщика для круглогодичного проживания!
Не более пяти минут от прекрасного пляжа и в идеальном месте кв. Аурелия города Несебр! Без платы за обслуживание!!! Уже получен Акт 15.
В доме пять этажей + один цокольный этаж. 20 квартир, 20 парковочных мест, 20 складов. В здании один подъезд и будет установлен качественный лифт.
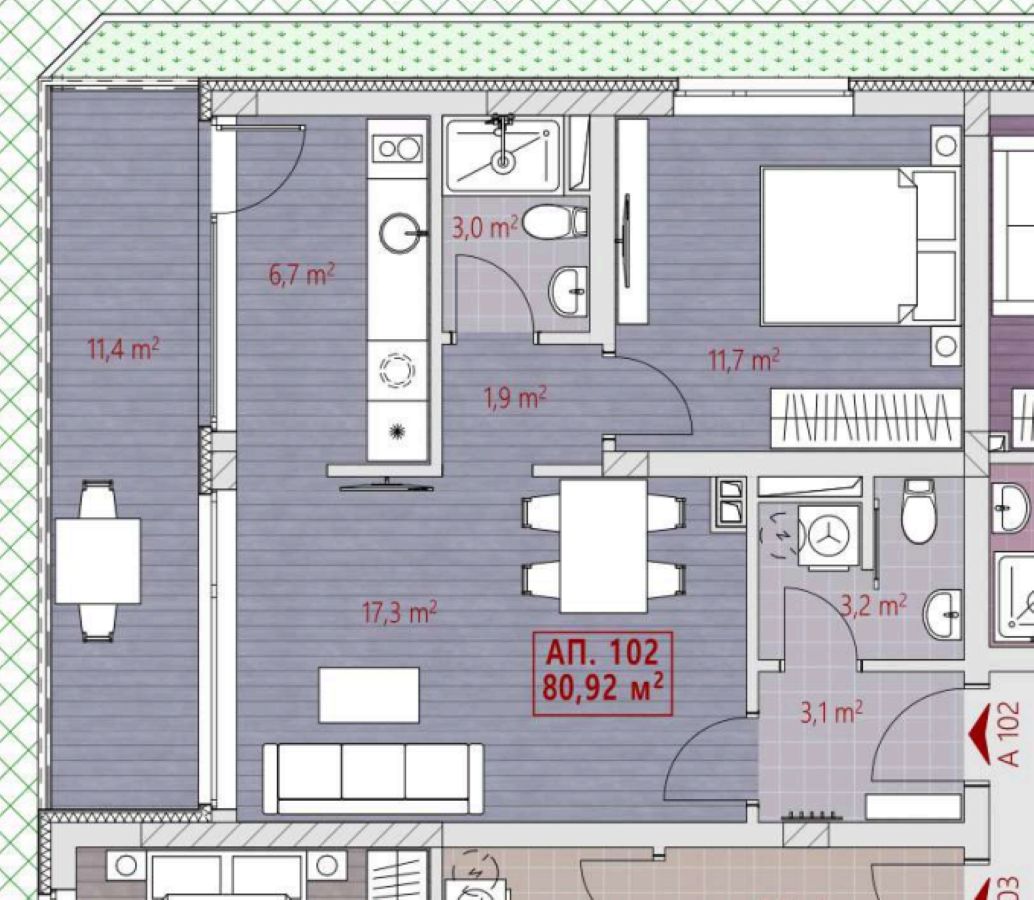
В настоящий момент остался один апартамент с одной спальней на первом этаже, общей площадью 80,92 кв.м.
К апаратменту прилагается терраса 11 кв.м. и склад №7.
Есть возможность приобрести парковочное место – от 10 000 €
Окончание строительства-12.2025 г.
Схема оплаты: 3000-депозит; 60% — предварительный договор; 40% — Акт 16
Здание спроектировано и построено в соответствии с новыми нормами и требованиями, введенными с апреля 2024 года, с учетом всех действующих экологических, технических и нормативных требований. К ним, среди прочего, относятся минимальные размеры дверей, ширина коридоров, лестниц и балконов, в том числе для доступа людей с ограниченными возможностями передвижения.
Здание спроектировано в соответствии со всеми стандартами и требованиями для максимальной энергоэффективности. Кроме того, при заключении предварительного договора можно заказать установку электрического теплого пола. Качественные столярные изделия (окна) от известного производителя Rehau с высокоэнергетическим стеклом.
Здание выполнено из монолитного бетона, перегородки выполнены из кирпича Porotherm. Здание сдается в полной отделке (под ключ), при отделочных работах в помещениях (квартирах) гипсокартон не используется. Высококачественная штукатурка стен и потолка будет покрашена, полы будут покрыты ламинатом и терракотой. В квартирах завершены входные и межкомнатные двери, санузлы и санузлы.) В рамках проекта будут подготовлены установки для систем кондиционирования. Для гидроизоляции будут использованы современные решения таких компаний, как Gemini PGR, пароизоляционная мембрана Pegasus Spot и битумная гидроизоляция Gemini P.
Здание будет оборудовано системой безопасности с комбинированным замком, фасадной подсветкой.
Похожие объявления
Просторный апартамент с одной спальней
Солнечный Берег, EfirКупить квартиру на Солнечном Берегу. Предлагаем на продажу двухкомнатную меблированную квартиру на...
Апартамент с одной спальней в комплексе на первой линии «Етъра 1» в Свяятом Власе
Святой Влас, Etara 1Предлагаем на продажу квартиру в комплексе «Етъра 1» на первой линии от...
Апартамент с одной спальней в жилом комплексе в Сарафово
Бургас, AtlantisПредлагаем на продажу апартамент в Сарафово, который находится в закрытом комплексе »Atlantis...
Апартамент с двумя спальнями в жилом комплексе на Солнечном берегу
Солнечный Берег, Polo ResortПредлагаем на продажу апартамент с одной спальней в комплексе ”Поло Резорт” в южной части курорта Солнечный...





